 
     APARTMENT BUILDING
Location: Tbilisi, Georgia 0162
My Role: Design and Planning
Status: unbuilt
2008
My Role: Design and Planning
Status: unbuilt
2008
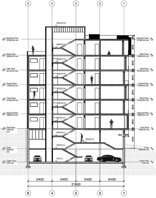
The design is for a 7 story Apartment building with commercial spaces on the ground floor and private parking in the basement located at the corner of two streets. The site and surrounding were built in the Soviet era, dominated by the Soviet style architecture from the early 50’s. 
The intention of the design is to create a distinguished building, different from the surrounding urban environment characterized with depressing architecture. All the entrances are next to each other on the same street and ventilated with natural light. The back yard is connected to the ground floor with stairs and an elevator easily accessible to the residents. The courtyard is a gathering space with plants and green features, which is meant to be shared and common to everyone.
 
     Sketch
 
     A View from the Street
 
        Plan
 
        Section
 
        Render 1.1
 
        Render 1.2
